


Products are meticulously crafted from high-hardness, high-strength premium raw materials to ensure a solid foundation. Each batch undergoes rigorous testing by third-party authoritative institutions, guaranteeing quality assurance in hardness, wear resistance, and safety.
Featuring an innovative modular integrated design, the structure is precision-engineered for durability, ensuring overall stability and safety. The standout feature is its ability to be easily moved as a single unit without disassembly, supporting repeated assembly and disassembly without compromising performance. Whether adapting to scene changes, space reconfigurations, or temporary setups, it handles transitions effortlessly, significantly boosting utilization efficiency and delivering lasting value through versatile functionality.


Featuring an innovative modular snap-fit design, the product requires no specialized tools or complex procedures, enabling rapid assembly and disassembly by a single person. This design reduces traditional installation time by up to 70%, significantly lowering reliance on skilled labor and overall labor costs. It facilitates rapid deployment and flexible adjustments, substantially enhancing overall project efficiency and economic benefits.
Crafted from premium, wear-resistant and weather-resistant base materials with a sturdy structure, ensuring enduring stability even after years of use. Offering diverse components, color options, and material choices, these units can be freely combined and easily replaced—like building blocks—to create a uniquely personalized style.

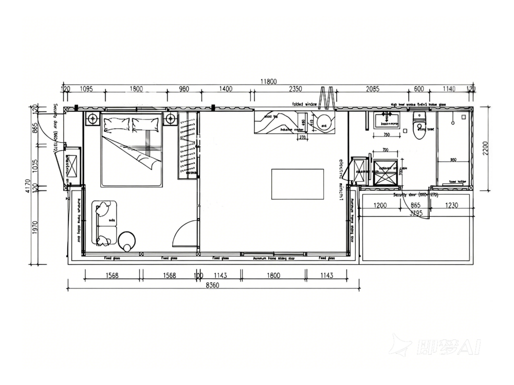
| External Size | 11.8*4.17*2.5m | 5.8*4.32*2.5m |
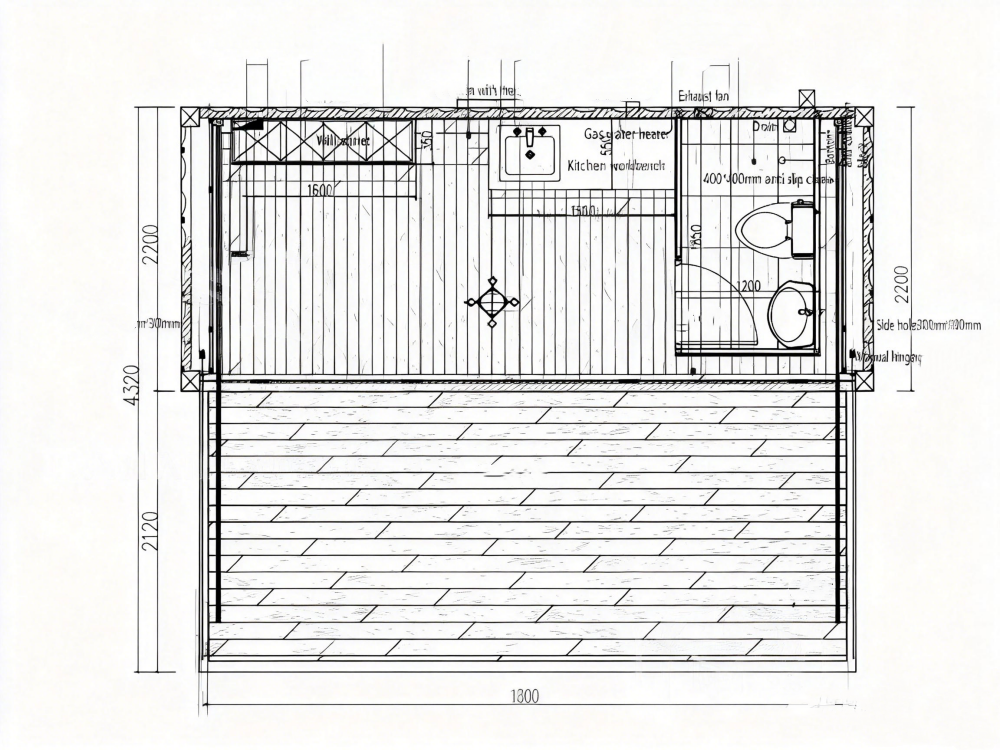
| Folded Size | 11.8*2.2*2.5m | 5.8*2.2*2.5m |
| Wall structure | Waved steel panel+ steel beam+ 5omm insulation layer + integrated wall panel | |
| Steel structure | 2.5-3.0mm welding steel structure | |
| Windows | Fixed glass wall and sliding glass window | Aluminum frame hollow glass window |
| Exterior door | Glass sliding door | Steel security Door |
| Interior door | Wood door | Glass door |
| Floor | Steel panel + steel beam+basement board+ solid wood floor | |
| Automatic system | Winches, steel ropes, remote controller | |
| Bathroom | Shower, sitting toilet, wash basin,mirror(tiles for bathroom) | |
| Kitchen | Wooden top kitchen cabinet,stainless steel kitchen sink, tap | |
| Plumbing system | 32mm PPR for water pipe, 11Omm PVC for waste pipe | |
| Electricity system | Switch,socket,led light,waterproof socket,distribution box | |
| Shipping | Loading into 4oHQ sea container to ship | |